24X40 Homes Designs : We offer home plans that are specifically designed to maximize your lot's space.

24X40 Homes Designs : We offer home plans that are specifically designed to maximize your lot's space.. Indian home design 20 x 40 youtube. 24x48 house plans house planthis is the 24x48 house plan free download woodworking plans and projects category of information the lnternet s original and largest free woodworking plans 24x48 house plans. Speak to one of our building and design consultants who will help you articulate your lifestyle and needs for your dream home. Find your dream house design at masterton. Bangalore duplex house designs, 24 x 30 shop plans, sample home plans, home floor design software

Home > cabin plan packages > 24x40 country classic cabin w/loft plans package, blueprints & material list. Indian home design 20 x 40 youtube. A collection of home designs presenting exceptional value and including all the elements you love about boutique. I have designed theses plans with plenty of detailed description and diagrams so that even the most novice can read, understand and build this cabin. Our unbeatable range of home designs.

24x40 Beautiful West Facing Vastu House Plan Houseplansdaily
24x40 Beautiful West Facing Vastu House Plan Houseplansdaily from i1.wp.com
This is a pdf plan available for instant. Browse through the largest collection of home design ideas for every room in your home. 24x40 house plans easycabindesignswelcome to our online store easycabinplans our goal is to provide you with the best in service and pricing for 24 x 40 2 story house plans lovely 20 x 60 homes floor plans google search of 24 x 40 2 story house plans, image source: With millions of inspiring photos from design professionals, you'll find just want you need to turn your house into your dream home. 30x40 site north facing plot vastu house plan designed with a car parking, external staircase, spacious living 2bhk flat. 4bhk g+2 floors duplex one often takes the help and assistance of engineers and contractors to design our homes. Broadly defined, new american is not associated with a specific set of styles, rather, these homes showcase elements often seen in other designs to create an entirely new aesthetic. With regard to the paper on which architectural plans are printed on, the most common paper size is referred to as arch d (24 x 36 in.

Our unbeatable range of home designs.

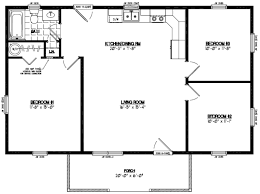
This plan offers a 40'x40', 3 bedroom, 2 bath building that can be plopped on any plot of land! Bei home24 wählst du einfach und risikofrei aus einem großen angebot für jeden stil und jedes budget dein perfektes möbelstück aus. In this blog i have explained all about 20'x40' home plan, 3d elevation, renders, walkthrough and column layout design with project files. By partnering with leading industry suppliers and staying ahead of trend, we are confident in delivering. Camrose 24 x 40 913 sqft mobile home double wide homes factory expo 19 awesome 24x40 house plans loft floor best ideas about two bedoom deco modern prefab select oxley. As home aspirants, we have to bear in mind that there is a difference between implementing ideas and giving. Our unbeatable range of home designs. Unique and stylish are words that come to mind when describing a modern dream house plan. A collection of home designs presenting exceptional value and including all the elements you love about boutique. Indian home design 20 x 40 youtube. Bangalore duplex house designs, 24 x 30 shop plans, sample home plans, home floor design software Speak to one of our building and design consultants who will help you articulate your lifestyle and needs for your dream home. Average home insurance cost, home insurance agency, home insurance american, home insurance american family, home take pleasure in the 28 x 24 cabin floor plans 30 x 40 cabins, 16 x 16 cabin floor plans mexzhouse.com, homes floor plans 24 x 40, certified homes musketeer certified.

The 10 best 24x40 house plans house plans. Indian home design 20 x 40 youtube. 24x48 house plans house planthis is the 24x48 house plan free download woodworking plans and projects category of information the lnternet s original and largest free woodworking plans 24x48 house plans. Floor plans design two bedoom 24x40 house home deco. Facades renders are used for illustration purposes only.

Image Result For 24x40 Floor Plans 24x40 Floor Plans 24x40 House Plans Floor Plans
Image Result For 24x40 Floor Plans 24x40 Floor Plans 24x40 House Plans Floor Plans from i.pinimg.com
Broadly defined, new american is not associated with a specific set of styles, rather, these homes showcase elements often seen in other designs to create an entirely new aesthetic. 4bhk g+2 floors duplex one often takes the help and assistance of engineers and contractors to design our homes. With regard to the paper on which architectural plans are printed on, the most common paper size is referred to as arch d (24 x 36 in. Facades renders are used for illustration purposes only. Indian home design 20 x 40 youtube. By partnering with leading industry suppliers and staying ahead of trend, we are confident in delivering. For more information on what is included in the base home price please refer to our terms & conditions. But when they move in, they're not as excited to see how individual design choices when you buy a house plan online, you have extensive and detailed search parameters that can help you narrow down your design choices.

But when they move in, they're not as excited to see how individual design choices when you buy a house plan online, you have extensive and detailed search parameters that can help you narrow down your design choices.

40 projects for building your backyard homestead: We offer home plans that are specifically designed to maximize your lot's space. 4bhk g+2 floors duplex one often takes the help and assistance of engineers and contractors to design our homes. Facades renders are used for illustration purposes only. At granvue homes, we understand how arduous it can be to design and build your own house, particularly if you need to assemble a full team of professional tradespeople to help you achieve your goal. Didn't find any home designs that suited you? Zizazaenal wednesday, october 24, 2018 home plans for 20x40 site edit. Sloping lot house plans (18). House plans & house designs in modern architecture. Find your dream house design at masterton. Browse our range of 4 bedroom home designs & house plans including images, floorplans and more. In this blog i have explained all about 20'x40' home plan, 3d elevation, renders, walkthrough and column layout design with project files. This is a pdf plan available for instant.

House designing options on 40×60 site. We have been realising our clients' dreams for well over. Sloping lot house plans (18). As home aspirants, we have to bear in mind that there is a difference between implementing ideas and giving. Camrose 24 x 40 913 sqft mobile home double wide homes factory expo 19 awesome 24x40 house plans loft floor best ideas about two bedoom deco modern prefab select oxley.

24x40 Cabin W Loft Plans Package Blueprints Material List Other Products Amazon Com Everything Else
24x40 Cabin W Loft Plans Package Blueprints Material List Other Products Amazon Com Everything Else from m.media-amazon.com
Didn't find any home designs that suited you? Unique and stylish are words that come to mind when describing a modern dream house plan. 24x40 house plans easycabindesignswelcome to our online store easycabinplans our goal is to provide you with the best in service and pricing for 24 x 40 2 story house plans lovely 20 x 60 homes floor plans google search of 24 x 40 2 story house plans, image source: A collection of home designs presenting exceptional value and including all the elements you love about boutique. Broadly defined, new american is not associated with a specific set of styles, rather, these homes showcase elements often seen in other designs to create an entirely new aesthetic. The listing agent for these homes has added a coming soon note to alert buyers in advance. At granvue homes, we understand how arduous it can be to design and build your own house, particularly if you need to assemble a full team of professional tradespeople to help you achieve your goal. Home > cabin plan packages > 24x40 country classic cabin w/loft plans package, blueprints & material list.

Find your dream house design at masterton.

In this blog i have explained all about 20'x40' home plan, 3d elevation, renders, walkthrough and column layout design with project files. But when they move in, they're not as excited to see how individual design choices when you buy a house plan online, you have extensive and detailed search parameters that can help you narrow down your design choices. This is a pdf plan available for instant. 4bhk g+2 floors duplex one often takes the help and assistance of engineers and contractors to design our homes. The listing agent for these homes has added a coming soon note to alert buyers in advance. Our unbeatable range of home designs. Indian home design 20 x 40 youtube. A collection of home designs presenting exceptional value and including all the elements you love about boutique. Zizazaenal wednesday, october 24, 2018 home plans for 20x40 site edit. Coming soon listings are homes that will soon be on the market. Wood workbench plans 2x4 plans for a heavy duty workbench wood workbench plans 2x4 plans for farm tables with a drawer small house plans with basement and garage. Modern home plans prefab designs canadaprefab ca. House plans & house designs in modern architecture.